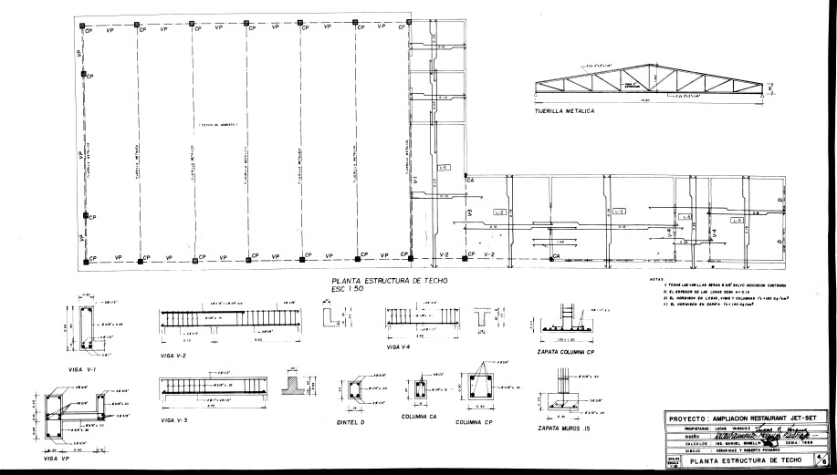
Santo Domingo.- Las autoridades solo disponen de una parte de un conjunto de seis planos técnicos relacionados con la construcción de la discoteca Jet Set, colapsada el pasado 8 de abril en el sector El Portal. Se trata del plano número cuatro, bajo el título “Proyecto: ampliación Restaurant Jet Set”, el cual se encuentra archivado en el Ministerio de Vivienda y Edificaciones (MIVED), transferido desde el Ministerio de Obras Públicas y Comunicaciones (MOPC). (Seguir leyendo…)
Relacionado: Remodelaciones en Jet Set fueron hechas “a la brigandina”
Te podría interesar:


